Quadrilocale in vendita

Dello, Via Cavalieri Di Vittorio Veneto
€ 275.000
4 locali 4 locali
136 Mq 136 Mq
2 bagni 2 bagni

Quadrilocale in vendita

Dello, Via Cavalieri Di Vittorio Veneto

Descrizione annuncio

TECNORETE AZZANO MELLA

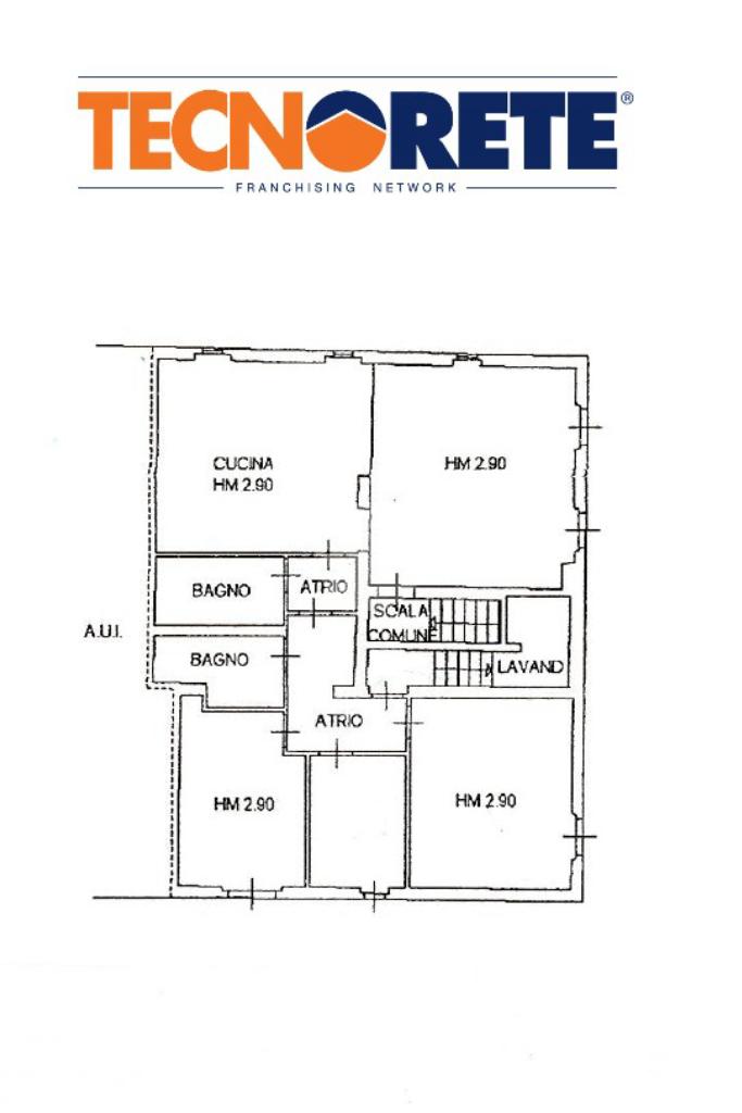
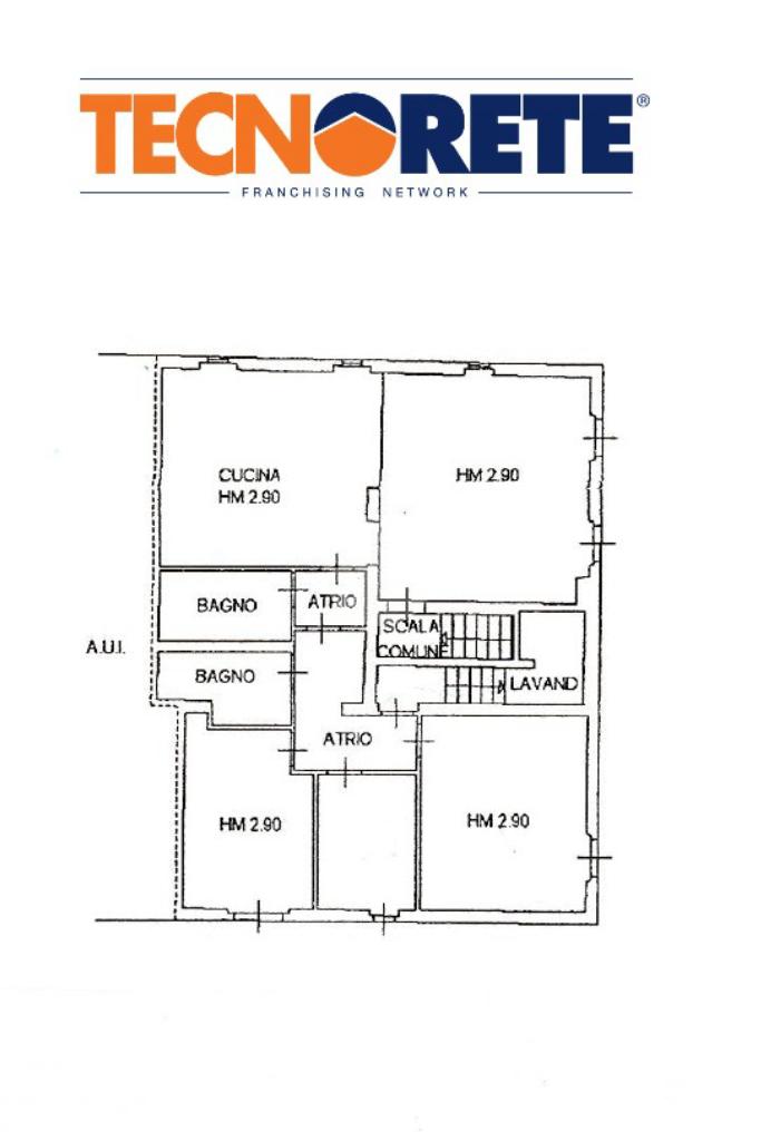
La soluzione si trova in una tranquilla corte servita dal parco comune e caratterizzata dalle ottime finiture.
L'accesso all'appartamento è da una scala comune a sole tre unità abitative.

Il portoncino blindato accede alla zona giorno, composta da un ampia zona living sulla destra e, separata da un arco, la zona pranzo con angolo cottura.
L'intero ambiente è impreziosito dalle travi a vista e reso luminoso dalle numerose finestre.

Il disimpegno accede ai bagni, uno con doccia ed uno con vasca, entrambi con abbaino elettrico.

La zona notte è composta da tre camere da letto, una singola, una utilizzabile come studio ed una matrimoniale.

Tutta la zona notte è rifinita in parquet.

Tramite scala interna si accede ad una piccola ma funzionale lavanderia.

Gli infissi sono in doppio vetro legno e in ogni ambiente è già presente il condizionatore.

All'interno della corte sono disponibili box auto a 25.000 € e posti auto a 10.000 €.

POSSIBILITA' DI ACQUISTO CON FORMULA AFFITTO A RISCATTO CON CAPARRA MINIMA DEL 10% DEL PREZZO.

APE in fase di rilascio

Per maggior informazioni contattaci
030.6153201
WhatsApp 331.9305721

La nostra Agenzia EPB Studio, affiliata alla TECNORETE, seconda rete immobiliare del Gruppo Tecnocasa, ha la sede nel Comune di Azzano Mella in Via Giovanni Paolo II n. 41/C. Offre servizi di intermediazione nelle fasi di vendita, acquisto o locazione di immobili ad uso residenziale nella zona di Azzano Mella, Dello, Mairano, Barbariga e Longhena.



Mostra tutto

Nelle vicinanze

Trasporto pubblico Trasporto pubblico
Trasporto pubblico
3,0 Km
Scuole Scuole
Scuole
740 m
scuola media agosti
790 m
Scuola elementare
2,3 Km
Farmacia Farmacia
Farmacia Antonio Scalvini
500 m
Parafarmacia
720 m
Farmacia Dott. Marchi
2,4 Km
Supermercati Supermercati
LD
320 m
Unes
360 m
Conad
440 m
Negozi Negozi
Nuova forneria
250 m
Bruno
320 m
Panificio Dordoni
390 m
Bar Bar
Double B
250 m
Bar Orsola
300 m
Ful Cafè
310 m
Bar Piano B
470 m
Circolo combattenti
520 m
Ristoranti Ristoranti
Pizzeria Ristorante Ponderose
400 m
Ristorante Castello
420 m
Ristorante Anni
540 m
Nerobianco
780 m
Trattoria Mezzo Soldo
1,4 Km
Mostra tutto

Caratteristiche

Rif.:
61097405
Piano:
2 di 2 (ultimo Piano)
Box:
1
Posti auto:
1
Camere da letto:
2
Arredamento:
Assente
Mostra tutto
Prezzo Prezzo
€ 275.000
Prezzo box Prezzo box
€ 35.000
Rata mutuo Rata mutuo
€ 1.306 / mese
Spese annue Spese annue
€ 1.500
Proponi il tuo prezzoProponi il tuo prezzo

Classe Energetica

G
G
G
G
G
G
G
G
G
EP globale non rinnovabile:
499.00 kW h/m² anno
EP invernale del fabbricato:
EP estiva del fabbricato:
Anno di costruzione:
2005
Riscaldamento:
Autonomo
Tipo impianto:
A radiatori
Tipo alimentazione:
Metano

Ti interessa visionare l'immobile?

Fissa un appuntamento  Fissa un appuntamento

Richiedi informazioni

Clicca su Leggi per aprire l'informativa
* Questi campi sono obbligatori

Calcola il tuo mutuo

Semplice e senza impegno
Anticipo

( % )
Mutuo

( % )

pochi semplici passi

inserisci i tuoi dati
Questionario completato
Grazie per aver richiesto un appuntamento senza impegno con un nostro Consulente del Credito e Assicurativo.

Hai inserito correttamente tutti i dati necessari e a breve riceverai una e-mail con un link da convalidare per inviare i tuoi dati.
Affiliato
E.p.b. Studio D.I.
Via Giovanni Paolo II, 41/C 25020 Azzano Mella (BS)

Il nostro staff


  • Emanuele Pesce
    Affiliato

  • Tommaso Bernardi
    Collaboratore

  • Ines Giacobbi
    Coordinatrice

  • Rebecca Zappa
    Collaboratrice
Via Giovanni Paolo II, 41/C 25020 Azzano Mella (BS)
Zona: Azzano Mella-Mairano-Dello-Barbariga-Longhena
Mostra su mappa
Orari: SIAMO APERTI TUTTI GIORNI IN ORARIO CONTINUATO DALLE 09.00 ALLE 19.00. IL SABATO SIAMO APERTI DALLE 09.00 ALLE 16.00
Affiliato
E.p.b. Studio D.I.
Via Giovanni Paolo II, 41/C 25020 Azzano Mella (BS)

2026 Tecnocasa Franchising S.p.A. - P. IVA 08365160152 - Via Monte Bianco 60/A 20089 Rozzano (MI). Ogni agenzia ha un proprio titolare ed è autonoma. Privacy policy | Policy utilizzo | Cookie policy